Architektur

Innenarchitektur

Bauen im Bestand

Wettbewerbe

Lehrtätigkeit

Büroprofil

Impressum/Kontakt



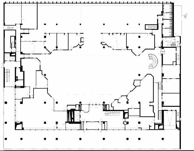
Neugestaltung Zentrale der Frankfurter Sparkasse
Auftraggeber: Frankfurter Sparkasse
Projektpartnerin: Dipl.-Ing. Beate Weller
Mitarbeiter: Dipl.-Ing. A. Balthasar, Dipl.-Ing. P. Hackh, Dipl.-Ing. Yoon-Jung Choe
Planung: 2004

Der Grundriss des Erdgeschosses erhält eine klare Raumstruktur mit einer Schichtung der verschiedenen Funktionen vom Zentrum aus. Die zentrale Halle wird hinsichtlich der Höhen der einzelnen Raumteile neu strukturiert. Der eingefügte und raumbestimmende Ausschnitt einer Schalenwandung dramatisiert den Raum. Die Atmosphäre wird durch das Zusammenwirken der natürlichen Materialien sowie den artifiziellen Oberflächen erzeugt. Das Farbspektrum besteht aus dem kraftvollen und warmen Ton des Holzes wie auch des braunen Teppichbodens, zusammen mit dem Blau, das Ausdruck für Weite und Orientierung ist, sowie der Ruhe und Gelassenheit des Graus mit der Veredelung des Basaltes.